본문

토목
오수받이내충격 EZ PVC 오수받이
제품규격
| 호칭 | 유입측 | 유출측 | Z1 | Z2 | Z3 | Z4 | Z5 | L | L1 | L2 | L3 | L4 | L5 | L6 |
|---|---|---|---|---|---|---|---|---|---|---|---|---|---|---|
| 300 | 100 | VG150 | 242.5 | 255.6 | 265 | 495 | 570 | 351 | 123 | 91.6 | 273.5 | 239.1 | 190 | 402 |
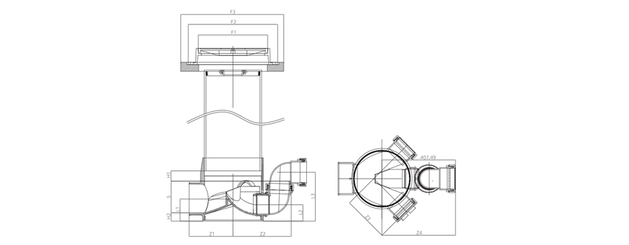
※ 내충격 PVB 오수받이 A형 도면
| 물받이지름 | 유입측 | 유출측 | Z |
|---|---|---|---|
| 300 | 100 | HI-VG150 | 371.7 |
※ 내충격 PVB 오수받이 B형 도면
| 물받이지름 | 유입측 | 유출측 | Z |
|---|---|---|---|
| 300 | 100 | HI-VG150 | 242.69 |
* 제품의 성능과 디자인은 품질 및 안전성 향상, 소음 감소 등을 위하여 별도의 사전 예고없이 일부 변경될 수 있습니다.