본문

토목
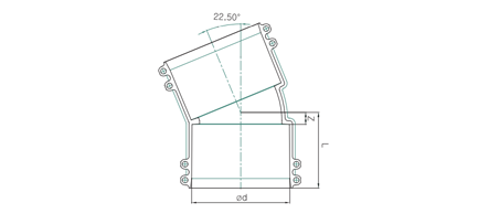
이중벽관 이음관22.5엘보 (D22LA)
제품규격
| 호칭지름 | Z | L | HOLE |
|---|---|---|---|
| 150 | 25 | 146 | 185 |
* 제품의 성능과 디자인은 품질 및 안전성 향상, 소음 감소 등을 위하여 별도의 사전 예고없이 일부 변경될 수 있습니다.

토목
이중벽관 이음관
| 호칭지름 | Z | L | HOLE |
|---|---|---|---|
| 150 | 25 | 146 | 185 |
* 제품의 성능과 디자인은 품질 및 안전성 향상, 소음 감소 등을 위하여 별도의 사전 예고없이 일부 변경될 수 있습니다.