본문

토목
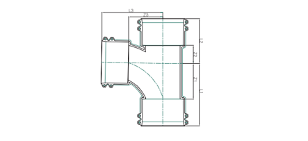
이중벽관 이음관YT (DSTA)
제품규격
| 호칭지름 | Z1 | Z2 | Z3 | L1 | L2 | L3 |
|---|---|---|---|---|---|---|
| 150 | 160 | 81 | 155 | 280 | 201 | 275 |
| 200 | 189 | 101 | 185 | 329 | 241 | 325 |
* 제품의 성능과 디자인은 품질 및 안전성 향상, 소음 감소 등을 위하여 별도의 사전 예고없이 일부 변경될 수 있습니다.

토목
이중벽관 이음관
| 호칭지름 | Z1 | Z2 | Z3 | L1 | L2 | L3 |
|---|---|---|---|---|---|---|
| 150 | 160 | 81 | 155 | 280 | 201 | 275 |
| 200 | 189 | 101 | 185 | 329 | 241 | 325 |
* 제품의 성능과 디자인은 품질 및 안전성 향상, 소음 감소 등을 위하여 별도의 사전 예고없이 일부 변경될 수 있습니다.