본문

토목
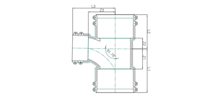
이중벽관 이음관이경YT (DSTA)
제품규격
| 호칭지름 | Z1 | Z2 | Z3 | L1 | L2 | L3 |
|---|---|---|---|---|---|---|
| 150X100 | 105 | 53 | 135 | 225 | 173 | 215 |
| 200X150 | 162 | 75 | 171 | 302 | 215 | 291 |
| 250X150 | 155 | 75 | 196 | 306 | 225 | 316 |
| 300X150 | 161 | 75 | 231 | 336 | 250 | 351 |
* 제품의 성능과 디자인은 품질 및 안전성 향상, 소음 감소 등을 위하여 별도의 사전 예고없이 일부 변경될 수 있습니다.