본문

토목
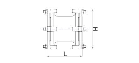
압력용 내충격 이음관대구경 소켓
제품규격
| 규격 | L | H |
|---|---|---|
| 125A | 349 | 252 |
| 150A | 262 | 296 |
| 200A | 296 | 351 |
| 250A | 328 | 442 |
| 300A | 352 | 496 |
* 제품의 성능과 디자인은 품질 및 안전성 향상, 소음 감소 등을 위하여 별도의 사전 예고없이 일부 변경될 수 있습니다.

토목
압력용 내충격 이음관
| 규격 | L | H |
|---|---|---|
| 125A | 349 | 252 |
| 150A | 262 | 296 |
| 200A | 296 | 351 |
| 250A | 328 | 442 |
| 300A | 352 | 496 |
* 제품의 성능과 디자인은 품질 및 안전성 향상, 소음 감소 등을 위하여 별도의 사전 예고없이 일부 변경될 수 있습니다.