본문

토목
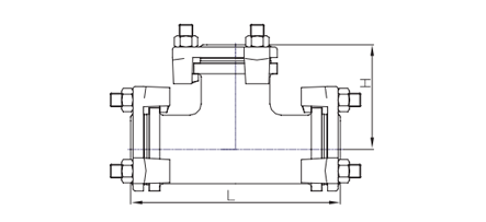
압력용 내충격 이음관중구경 티
제품규격
| 규격 | L | H |
|---|---|---|
| 50A | 238 | 119 |
| 65A | 274 | 137 |
| 75A | 282 | 141 |
| 100A | 350 | 169 |
* 제품의 성능과 디자인은 품질 및 안전성 향상, 소음 감소 등을 위하여 별도의 사전 예고없이 일부 변경될 수 있습니다.

토목
압력용 내충격 이음관
| 규격 | L | H |
|---|---|---|
| 50A | 238 | 119 |
| 65A | 274 | 137 |
| 75A | 282 | 141 |
| 100A | 350 | 169 |
* 제품의 성능과 디자인은 품질 및 안전성 향상, 소음 감소 등을 위하여 별도의 사전 예고없이 일부 변경될 수 있습니다.