본문

건축
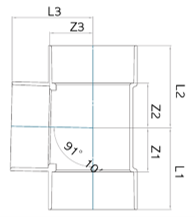
EDR 이음관DT (본드접착식)
제품규격
| 호칭지름 | Z | L1 | L2 | L3 |
|---|---|---|---|---|
| 300 | 168 | 317 | 318 | 318 |
<본드 도포시 주의사항>
* WELD-ON 용해성 접착제 717을 사용하기 바랍니다.(권장사항: 프라이머 WELD-ON P-70 사용후 717본드 도포 요망
* 본드 도포 시 대구경용 솔인 WELD-ON 7020, 4020, 그 외 대구경용 솔을 사용하면 더욱 편리한 시공이 가능합니다.
* 제품의 성능과 디자인은 품질 및 안전성 향상, 소음 감소 등을 위하여 별도의 사전 예고없이 일부 변경될 수 있습니다.