본문

건축
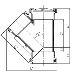
NC1 이음관CY (I형)
제품규격
| 호칭지름 | Z1 | Z2 | Z3 | L1 | L2 | L3 | L4 |
|---|---|---|---|---|---|---|---|
| 50 | 87 | 13 | 97 | 160 | 122.5 | 48.5 | 132.5 |
| 50X35 |
76.5 | 2.5 | 82 | 141 | 105 | 38 | 117.5 |
| 50X40 |
81 | 5 | 87 | 150 | 114.5 | 40.5 | 122.5 |
| 75 | 125 | 22.5 | 132 | 225 | 175.5 | 73 | 182.5 |
| 75X50 | 114 | 2.5 | 109 | 195.5 | 149.5 | 53 | 159.5 |
| 100 | 151 | 25 | 157 | 277.5 | 214 | 88 | 220 |
| 100X50 | 128 | 13 | 113 | 220 | 163.5 | 76 | 176 |
| 100X75 | 148 | 12 | 146 | 256 | 198.5 | 75 | 209 |
* CY-I형, II형의 치수는 Y관과 동일함
* 제품의 성능과 디자인은 품질 및 안전성 향상, 소음 감소 등을 위하여 별도의 사전 예고없이 일부 변경될 수 있습니다.