본문

건축
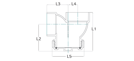
비압력용 이음관 [ DTS 이음관 ]P-T
제품규격
| 호칭지름 | L1 | L2 | L3 | L4 | L5 | |
|---|---|---|---|---|---|---|
| CO 65 CAP 사용 | ◆50 | 110 | 77 | 60 | 27 | 90 |
| CO 75 CAP 사용 | ◆65 | 148 | 106 | 76 | 35 | 103 |
| CO 100 CAP 사용 | ◆75 | 148 | 100 | 90 | 41 | 128 |
| CO 125 CAP 사용 | ◆100 | 186 | 124 | 111 | 53 | 157 |
* 제품의 성능과 디자인은 품질 및 안전성 향상, 소음 감소 등을 위하여 별도의 사전 예고없이 일부 변경될 수 있습니다.