본문

건축

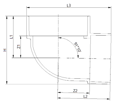
비압력용 이음관 [ DTS 이음관 ]

DL-이경

제품규격

호칭지름 Z1 Z2 L1 L2 L3 H
◆100X75 42 65 80 102 165 130